-
Морозильные лари
-
Камеры холодильные
-
Холодильные камеры для цветов
-
Холодильные камеры со стеклянным фронтом
-
Барные холодильники и морозильники
-
Холодильные и морозильные шкафы
-
Холодильные шкафы-витрины
-
Холодильники для вина
-
Витрины настольные
-
Витрины кондитерские
-
Холодильные горки
-
Салат-бары
Возможно вы искали:
Холодильная витрина Carboma BAVARIA 4 GC110 SM 2,5-1 (версия 2.0) (без боковин)
Описание
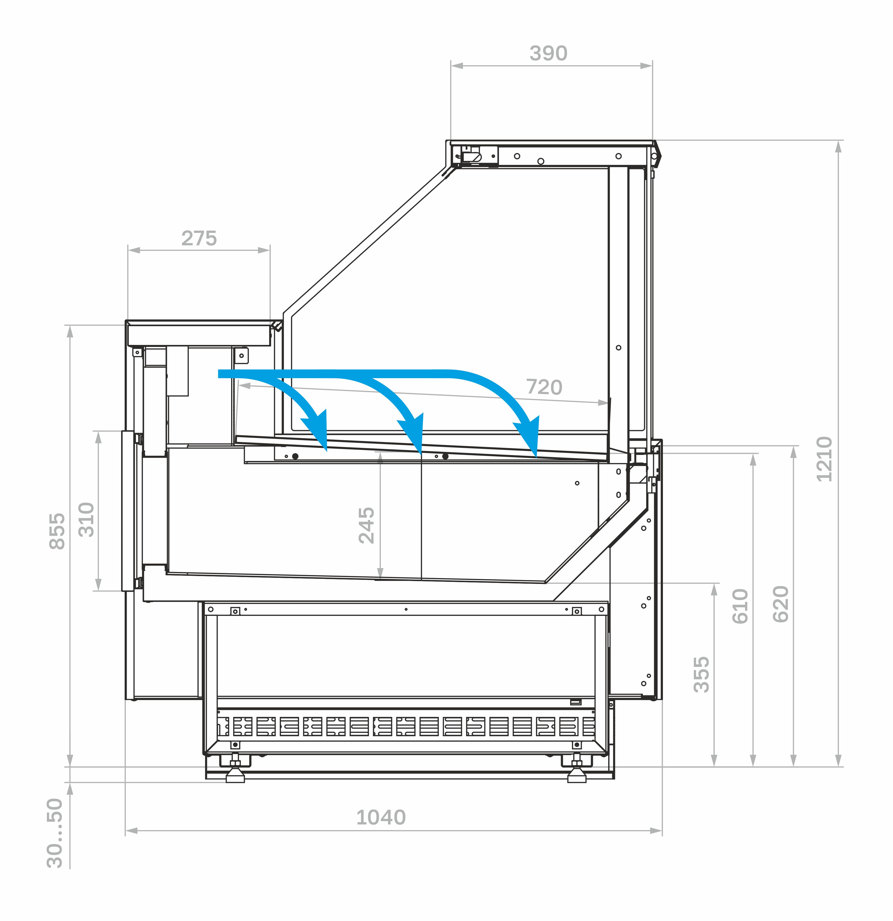
Холодильная витрина Carboma Bavaria 4 GC110 SM 2,5-1 версия 2.0 используется на предприятиях общественного питания и торговли для охлаждения, кратковременного хранения, демонстрации и продажи продуктов питания, салатов, молочных и других гастрономических изделий. Модель оснащена дополнительным накопителем. Столешница и экспозиционная поверхность выполнены из шлифованной нержавеющей стали.
Особенности:
- Микропроцессорный блок управления с индикацией температуры
- Оттайка естественными теплопритоками
- LED подсветка внутреннего объема (4000 К)
- Энергосберегающие шторки
- Фиксируемое фронтальное стекло
- Структурный стеклопакет боковины
- Климатический класс: 3
- Цвет: RAL 9006/9005
- Длина с боковинами: 2570
- Полезный объем: 0,27 м3
- Максимальная температура окружающей среды: 25 °С
- Максимальная относительная влажность окружающей среды: 60%
Опции (заказываются отдельно):
- Боковина со стеклопакетом
- Стыковочный комплект
- LED подсветка (3000К, Pink)
- Дополнительная неохлаждаемая полка
- Низкие и профильные перегородки
- Полноформатный делитель из оргстекла
- Полнопрофильный делитель: боковина + стеклопакет
- Освещение фронтальной панели
- Полка для весов
- Двуступенчатые поддоны выкладки товаров
Описание
Холодильная витрина Carboma Bavaria 4 GC110 SM 2,5-1 версия 2.0 используется на предприятиях общественного питания и торговли для охлаждения, кратковременного хранения, демонстрации и продажи продуктов питания, салатов, молочных и других гастрономических изделий. Модель оснащена дополнительным накопителем. Столешница и экспозиционная поверхность выполнены из шлифованной нержавеющей стали.
Особенности:
- Микропроцессорный блок управления с индикацией температуры
- Оттайка естественными теплопритоками
- LED подсветка внутреннего объема (4000 К)
- Энергосберегающие шторки
- Фиксируемое фронтальное стекло
- Структурный стеклопакет боковины
- Климатический класс: 3
- Цвет: RAL 9006/9005
- Длина с боковинами: 2570
- Полезный объем: 0,27 м3
- Максимальная температура окружающей среды: 25 °С
- Максимальная относительная влажность окружающей среды: 60%
Опции (заказываются отдельно):
- Боковина со стеклопакетом
- Стыковочный комплект
- LED подсветка (3000К, Pink)
- Дополнительная неохлаждаемая полка
- Низкие и профильные перегородки
- Полноформатный делитель из оргстекла
- Полнопрофильный делитель: боковина + стеклопакет
- Освещение фронтальной панели
- Полка для весов
- Двуступенчатые поддоны выкладки товаров
-
Морозильные лари
-
Камеры холодильные
-
Холодильные камеры для цветов
-
Холодильные камеры со стеклянным фронтом
-
Барные холодильники и морозильники
-
Холодильные и морозильные шкафы
-
Холодильные шкафы-витрины
-
Холодильники для вина
-
Витрины настольные
-
Витрины кондитерские
-
Холодильные горки
-
Салат-бары
Возможно вы искали:
Для оформления заказа необходима авторизация. Получить код для авторизации на WhatsApp / e-mail
Впервые на нашем портале?
Пройди быструю регистрацию и начни получать скидки уже с первого заказа!
Пройти регистрацию
Спасибо понятно



Принимаем оплату картами
Распечатать страницу